

全国免费客服电话 15208716865 邮箱:347406630@qq.com
手机:15208716865
电话:15208716865
地址:昆明经开区阿拉街道办事处耀兴枫丹白露花园3幢1703号
发布时间:2022-03-29 18:46 人气:
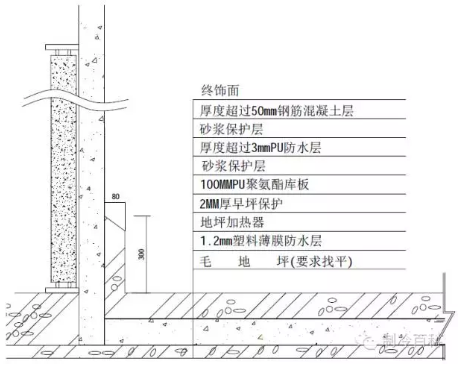
1、 建筑环境
1) 做冷库前,要求用户将冷库范围的地坪下降200-250mm,并做好早坪;
2) 要求在每个冷藏库的下面留有排水地漏和冷凝水排放管,冷冻库库内不设排水地漏且冷凝水排放管必须设在冷库外;
3) 低温库要求铺设地坪加热丝,并且一备一用,并在地面铺好加热丝后,进行2mm左右的早坪保护,才可以铺设地坪保温层。如果冷库所在楼层为最低层,低温库地坪可以不做加热丝。
常见冷库地坪处理办法如下图:
2、 隔热板
隔热板必须符合国家标准,并持有技术监督局检测报告。
2.1 绝热材料
绝热材料应使用聚氨脂发泡两面带喷塑钢板或不锈钢板的复合保温板材料,厚度至少100mm。保温材料为阻燃型,无氯氟碳化合物。允许为改善性能加入一定比例的增强材料,但不能因此减低隔热性能。
2.2 隔热板壁板
(1) 内、外面板为彩色钢板。
(2) 彩色钢板涂膜层必须无毒、无异味、耐腐蚀,符合国际食品卫生标准。
2.3 隔热板整体性能要求
(1) 隔热板的安装结合面不允许有外露的隔热材料,结合面上不得有凸凹大于1.5mm的缺陷。
(2) 隔热板的板面应保持平整光滑,不应有翘曲、划伤、磕碰、凹凸不平等缺陷。
(3) 允许在隔热板的内部采取增强性措施来提高机械强度,但不允许降低隔热效果。
(4) 隔热板的周边材料必须采用与隔热材料相同的高密度硬质材料,不允许使用其他导热系数较大的材料。
(5) 隔热墙板与地面相接处应有防止冷桥的措施。
(6) 隔热板之间的板缝处须采用玻璃胶或其他无毒、无异味、无有害物质挥发、符合食品卫生要求并且密封性良好的胶性材料密封。
(7) 隔热板之间的联接结构应保证接缝之间的压力和接缝处连接牢固。
2.4 隔热板安装要求
库板和库板之间的接缝必须密封良好,两库板之间的拼接缝要求小于1.5mm,同时在结构上要求牢固可靠。库体拼接完后,所有库板接缝应涂连续均匀的密封胶。下面对各种接缝的断面结构进行说明。
库板拼接示意图
当顶板跨度超过4m或冷库顶板要载重时,必须对冷库顶板进行吊装。螺栓位置要选择库板中点,为使库板受力尽可能均匀,必须按照图示使用铝合金角钢或蘑菇帽。
2.5 库体隔热板接缝的密封性要求
(1) 应保证墙板与地面结合处墙板的隔热材料与地坪中的隔热材料密切相接,有可靠的密封、防潮处理。
(2) 隔热板的接缝若采用现场灌注发泡方式密封结合,首先应保证使两块隔热板的隔热材料能够紧密相贴,然后使用密封胶布贴匀结合面,消除空隙,确保隔热材料粘合牢固。
(3) 隔热板接缝处的密封材料本身应抗老化、耐腐蚀、无毒、无异味、无有害物质挥发、符合食品卫生要求并且密封性良好。接缝处的密封材料不得有偏移、离位保证接缝处的密封严实、均匀。
(4) 若采用密封胶条密封隔热板的接缝,接缝尺寸不得大于3mm。
(5) 组成库体的隔热板沿其高度方向必须是整体的,无水平的中间接缝。
(6) 冷库地坪隔热层的厚度应≥100mm。
(7) 库体顶棚的吊点结构必须采取措施减低“冷桥”效应,吊点的孔洞处应予以密封处理。
(8) 与库板相连的吊点材料的导热系数应较小,库的内表面也应采用同样材料的罩帽将吊点遮盖。
3、 装配式冷库库门要求
1) 装配式冷库配置3种门:铰链门,自动单侧滑动门,单侧滑动门。
2) 冷库门厚度、面层和绝热性能要求与库板相同,门框及门的结构不应有冷桥。
3) 所有低温冷库门门框内应埋设防止门的密封条被冻结的电加热或介质加热装置,当采用电加热时需提供电热保护装置和安全措施。
4) 小型冷藏库、冷冻库库门为手动平开门,门的表面要求同隔热板面板,库门把手及库门结构不应有“冷桥”,库门开度>90度。
5) 冷库库门带有门锁,门锁具有安全脱锁功能。
6) 所有库门都必须开关灵活、轻便,门框及门本身的密封接触平面必须光滑、平整,不得有翘曲、毛剌或螺丝端头歪斜、外露而产生刮、擦现象,保证密封胶条能够贴实门框周边。
4、 库体附件
1) 低温冷库(库温<-5℃=地面下须配置电热防冻装置及其温度自动调控装置,以有效防止库板底面的冻结变形。
2) 库内装设防潮、防爆的荧光照明灯,能在-25℃条件下正常工作,灯罩应防潮、防腐、防酸、防碱。库内灯光照明度应满足货物进出和取存的要求,地面照度>200lux。
3) 冷库内所有装置、设备均应做防腐、防锈处理, 但必须保证涂层无毒、不污染食物、无异味、便于清洁、不易于滋生细菌,符合食品卫生要求。
4) 管线孔洞均须做密封、防潮和隔热保温处理,并使表面光整。
5) 低温冷库应有压力平衡装置,以防止和消除温度骤变时库体过大的压力差及其引起的库体变形。
6) 冷库外部沿过道处应设置防撞装置。库门内应装设耐低温透明塑料门帘。
7) 温显仪要求安装在库门附近。
8) 冷藏库必须设置排水地漏,以便清洗冷库时污水排出。
5 、主要材料、附件选配标准
所有材料必须符合国家标准,并持有合格证及技术监督局检测报告。
冷风机、管道的安装标准
1、冷风机安装
1) 冷风机的安装位置要求远离库门,在墙的中间,安装后的冷风机应保持水平;
2) 冷风机吊装在顶板上,其固定必须用专用的尼龙螺拴(材质尼龙66),以防冷桥形成;
3) 当用螺栓固定冷风机时,要求在顶板上部加装长度大于100mm、厚度大于5mm的方木块, 以增加库板承重面积,防止库板凹陷变形,同时可以防冷桥形成;
4) 冷风机和背墙之间的距离为300~500mm,或按冷风机厂家提供的尺寸;
5) 冷风机风向不能倒转,确保冷风机往外吹风;
6) 当冷库化霜时风机电机必须断开以防止融霜时将热风吹入库内;
7) 冷库装货高度应低于冷风机底部至少30cm。
冷风机安装示意图如下:
2、 制冷管路安装
1) 在安装膨胀阀时,感温包必须扎紧在水平回气管上部,并保证与回气管接触良好,在回气管外应加以保温,以防止感温包受库温的影响;
2) 冷风机回气管爬升出库前在上升管底部都要安装回油弯;
3) 冷藏加工间和冷藏库或中温柜共用一台机组时,冷藏加工间回气管路和其它冷藏库或中温柜管路连接前必须加蒸发压力调节阀;
4) 每个冷库必须在回气管和供液管路上各安装独立的球阀,以便于调试维修。
其他管路选型、焊接、铺设、固定、保温等必须按照《制冷管路工程材料、施工、检验标准书》中规定的标准执行。
3 、排水管安装
1) 走在库内的排水管路应尽量短;走在库外的排水管应走在冷库背面或侧面不显眼处,以防碰撞及影响美观;
2) 冷风机的排水管通往冷库外应有一定的坡度,使融霜水顺利地排出库外;
3) 工作温度小于5℃的冷库,其库内排水管必须加装保温管(壁厚大于25mm);
4) 冷冻库排水管必须安装加热丝;
5) 在库外的连接管必须加装排水存水弯,管内保证一定的液封,以防止大量的库外热空气进入冷库内;
6) 为防止排水管脏堵,每个冷库必须单独设一个化霜水排水地漏(冷藏库可设在库内,冷冻库必须设置在室外)。
三、其他工程标准
机房位置、通风、机组固定等工程施工要严格按照《基础工程的施工与检验标准书》执行。
冷库电气工程施工应按照《电气工程的施工与检验标准书》执行。
相关推荐